„HOLLERHAUS“
Hollerweg 1-1c, 83052 Bruckmühl
ÄSTHETISCHE ARCHITEKTUR MIT BERGBLICK
Die Holzbauweise mit Fokus auf Nachhaltigkeit und gesundes Wohnen, das großzügige Platzangebot samt den hochwertigen Materialien unterstreichen die Wertigkeit der Häuser des Bauprojekts „HOLLERHAUS“.
Die durchdachten Grundrisse bestechen im Erdgeschoss durch einen offenen Küchenbereich, ein großes Wohn- und Esszimmer sowie ein Gästebad mit Dusche. Das Obergeschoss verfügt über drei Schlafzimmer, allesamt mit Balkonen und ein zentral platziertes Badezimmer mit Dusche und Badewanne samt Bergblick.
Besonderes Highlight ist das Studio im Dachgeschoss, welches durch seine Gauben und die extravagante Glasfront ein Refugium für Eltern oder kreatives Arbeiten bietet.
Die Kombination aus Holz und modernster Technik wie der Luft-Wasser-Wärmepumpe, der Photovoltaikanlage und der Somfy Smart-Home-Steuerung verleihen den Gebäuden einen einzigartigen Charakter.
NAHERHOLUNG IM WAHRSTEN SINNE DES WORTES
Der Standort Bruckmühl punktet mit seiner grünen Seele. Der Wert von Entschleunigung, Naturerlebnis und „Quality Time“ wird hier mit Leben gefüllt. Genießen Sie die Mangfall mit seinen typischen Auwäldern in greifbarer Nähe. Ob Joggingrunde am Fluss oder Tagesausklang in der Kaffeerösterei DINZLER auf dem Irschenberg - Das Gute liegt hier so nah.
Familien- und Arbeitsleben lassen sich optimal vereinen: Zügig mit Auto oder dem Meridian in München, Rosenheim oder Salzburg, im Alltag hingegen problemlos zu Fuß oder mit dem Fahrrad unterwegs. So trifft das Bauprojekt HOLLERHAUS den Nerv der Zeit und überzeugt mit seiner Kombination aus Infrastruktur und Lebensqualität.
AUSSTATTUNG & HIGHLIGHTS
| Doppelhaushälfte in reiner Holzbauweise mit natürlichen Dämmstoffen für ein Wohlfühl-Raumklima | |
| KfW-Effizienzhaus 55, Energieklasse A+, Endenergiebedarf 19,7 kWh/(m²∙a) | |
| Heizung mit Luft-Wärmepumpe ohne örtlichem CO₂-Ausstoß | |
| Photovoltaikanlage mit effizienten Hochleistungsmodulen (12 Module - 3,9 kWp) | |
| Bodentiefe Holzfenster mit dreifach Isolierverglasung und elektr. Fensterläden in Lärche geölt | |
| 2 Bäder mit bodenebenen Duschen und Zweisitzer-Badewanne | |
| Premium-Böden mit Landhausdielen 2,2 m (Bernsteineiche Sauvage strukturiert) und großformatigen Feinsteinfliesen in Bädern und Speisekammer | |
| Fußbodenheizung in allen Räumen (kann in jedem Raum einzeln reguliert werden) | |
| Somfy Smart Home Steuerung | |
| 4 Balkone in Nord-, Süd- und Ost- oder Westausrichtung in Lärche geölt | |
| Große Terrasse im privaten Garten und Rigolen (Zisterne) für Regenwassernutzung |
HOCHWERTIGE MATERIALIEN UND STILVOLLES DESIGN FÜR ZEITGEMÄSSES UND NACHHALTIGES WOHNEN
Ob Landhausdielen aus Bernsteineiche Sauvage, hochwertiges Sanitär, großformatige Feinstein-fliesen oder Fußbodenheizung flächendeckend auf allen Etagen, REALITAS setzt bei der Ausstattung konsequent auf Qualität führender Hersteller. Ziel ist eine Balance zwischen Zeitgeist und Zeitlosigkeit. So gewährleisten wir Funktionalität, die an jedem einzelnen Tag Freude bereitet, und eine herausragende Wertigkeit. Wichtig ist uns, eine geschmackvolle Optik, die mit der wertigen Ästhetik der Gebäude im Einklang steht. Wo immer möglich sind wohngesunde, ökologische sowie fair produzierte Baustoffe die erste Wahl.
Wärmepumpen sind wohl die effizienteste Art Sonnenenergie zu nutzen. Die umweltfreundliche und sparsame Heizungstechnik sowie die aufwendige Dämmung machen Ihr Zuhause zu einem Energie-Effizienzhaus nach KfW 55.
INFRASTRUKTUR
| Mangfall | 3 min. | |
| Bahnhof | 3 min. | |
| Restaurant | 4 min. | |
| Bäckerei | 5 min. | |
| Kindergarten | 5 min. | |
| Lebensmittel | 6 min. | |
| Schule | 7 min. | |
| Autobahn (A8) | 10 min. | |
| Autobahn (A99) | 25 min. | |
| Mittlerer Ring (München) | 32 min. |
GRUNDRISS ERDGESCHOSS
| Eingang + Flur (Wohnfläche ca. 13,0 qm) |
ca. | 15,5 qm |
| Bad 1 | ca. | 6,4 qm |
| Speisekammer | ca. | 4,4 qm |
| Küche + Wohnzimmer | ca. | 37,0 qm |
| Terasse Süd (Wohnfläche ca. 22,6 qm) |
ca. | 45,2 qm |
| Terasse Giebel (Wohnfläche ca. 2,4 qm) |
ca. | 4,8 qm |
| Gartenhaus (keine Wohnfläche) |
ca. | 5,9 qm |
GRUNDRISS OBERGESCHOSS
| Schlafzimmer | ca. | 18,1 qm |
| Bad 2 | ca. | 8,4 qm |
| Flur | ca. | 4,4 qm |
| Zimmer 1 | ca. | 13,3 qm |
| Zimmer 2 | ca. | 14,8 qm |
| Balkon Süd (Wohnfläche ca. 1,8 qm) |
ca. | 3,5 qm |
| Balkon Giebel (Wohnfläche ca. 2,3 qm) |
ca. | 4,7 qm |
| Balkon Nord (Wohnfläche ca. 1,5 qm) |
ca. | 2,9 qm |
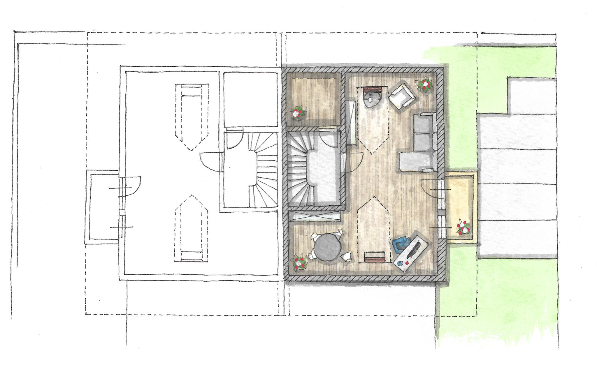
GRUNDRISS DACHGESCHOSS
| Flur (Wohnfläche ca. 3,8 qm) |
ca. | 4,4 qm |
| Abstellraum (Wohnfläche ca. 1,4 qm) |
ca. | 6,4 qm |
| Studio (Wohnfläche ca. 24,6 qm) |
ca. | 48,0 qm |
| Balkon Giebel (Wohnfläche ca. 2,4 qm) |
ca. | 4,7 qm |
+49 (0)89 41 41 43 810
hollerhaus (at) realitas.de
Unser Team steht Ihnen jederzeit zur Verfügung
Wir freuen uns schon, Ihnen das Bauprojekt HOLLERHAUS vorstellen zu dürfen.
Ihr Team HOLLERHAUS
<< zurück
Bitte stellen Sie Ihre Anfrage erneut. Sollte dies weiterhin auftreten kontaktieren Sie uns doch bitte per Telefon oder Email.
Ihr Team HOLLERHAUS
<< zurück











